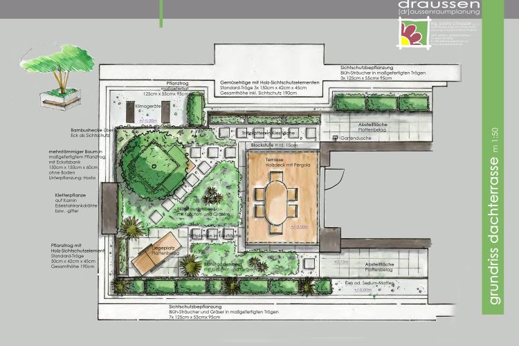
die sonnige dachterrasse
ein platz zum verweilen über den dächern wiens
eine dachterrasse schreit nach mehr grün!
die urpsrünglich mit betonplatten ausgelegte dachterrasse wird zur grünen oase.
_planungsphase_ 2020
_planungsumfang_ gestaltungskonzept, grobkostenrahmen






